方案展示
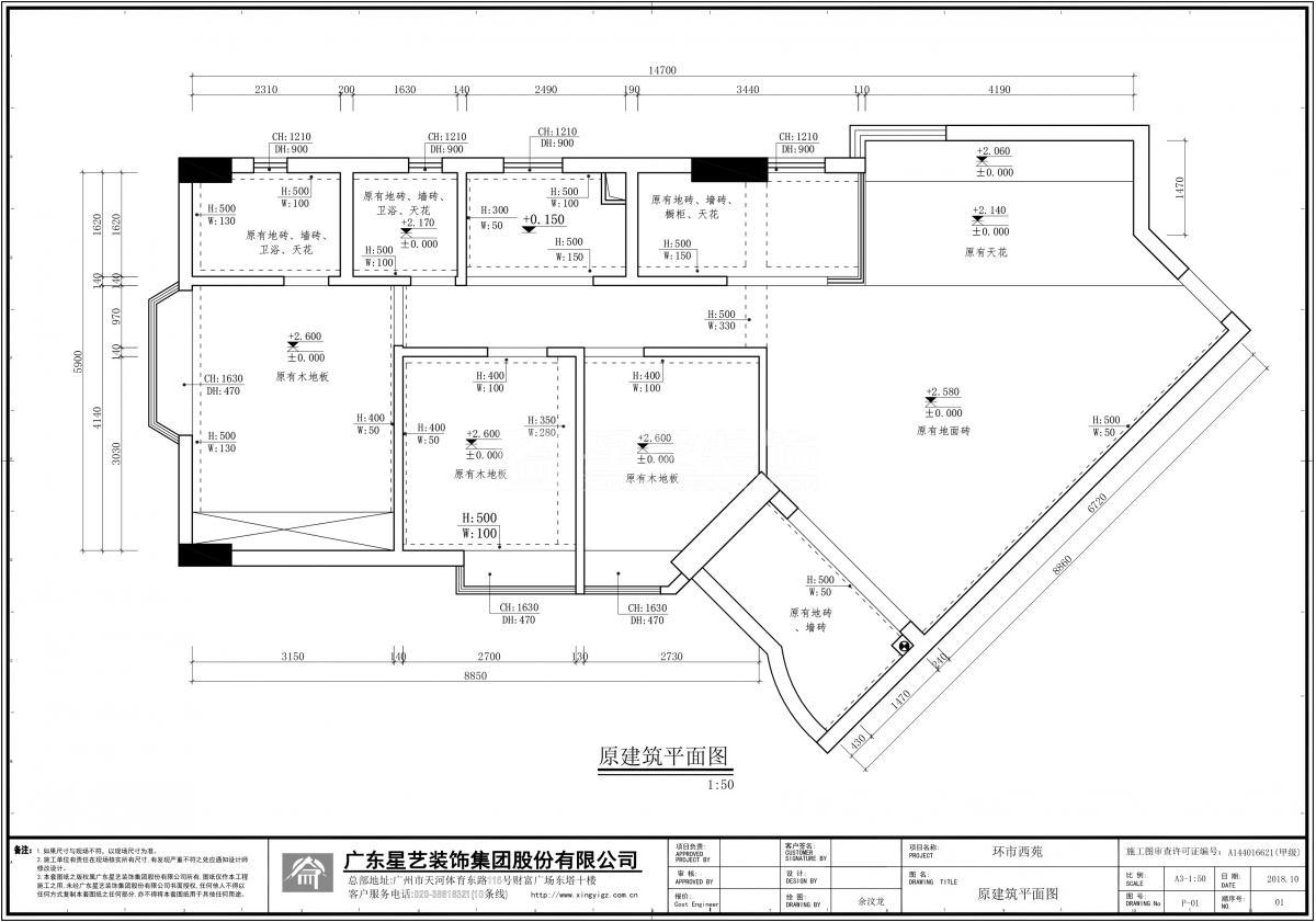
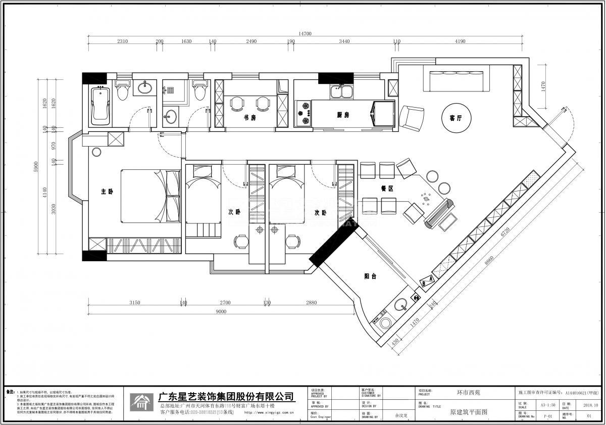
設計說明
兩位富有生活情趣和情懷的夫妻,帶著兩個可愛的孩子,工作之余,想要的是品茶,彈琴,寫字的日常,拼棄傳統的客大餐廳小,客廳是一個家庭圖書館,餐廳是在用餐以外的時間里品茶,彈琴,寫字的地方,多余的家私一件不要!多余的物件請看我的滿墻大柜!
[展開]-
陳可可的其它設計案例
-
簡約風格的其它設計案例
關注我們
分享到
微信

立即預約
在線咨詢
在線客服
公安部備案號 44010602004978號