方案展示
設計說明
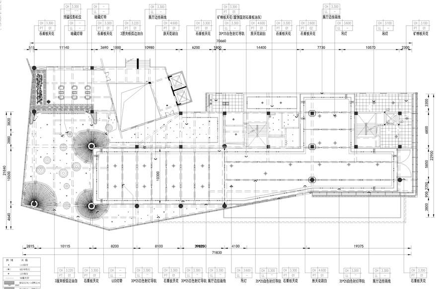
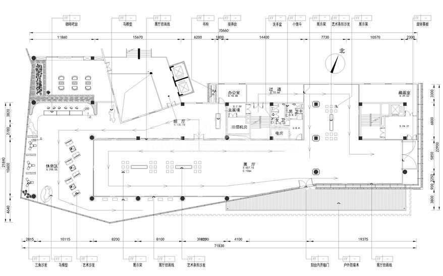
【設計說明】本案位于廣東省梅州市(一個有著濃郁的客家文化的城市)室內面積約1800平方,分休閑區和展示區,其它為功能室,東山谷美術館項目的主題(人文、生態、藝術)想要表達的是客家傳統文化和當化藝術的結合,空間主要白色為主體色,通過蘑菇的表現形式做為空間的點睛之處,也能為美術館的展現形式增加不同藝術氣氛。
[展開]-
星藝設計師的其它設計案例
-
現代風格的其它設計案例
關注我們
分享到
微信

立即預約
在線咨詢
在線客服
公安部備案號 44010602004978號