廣東星藝裝飾集團廣州有限公司,一起尋找好裝修!
您的當前位置:首頁>裝修案例>龍熙山別墅
分享到 微信
設計經驗:22年
上傳作品:27套
樓盤:
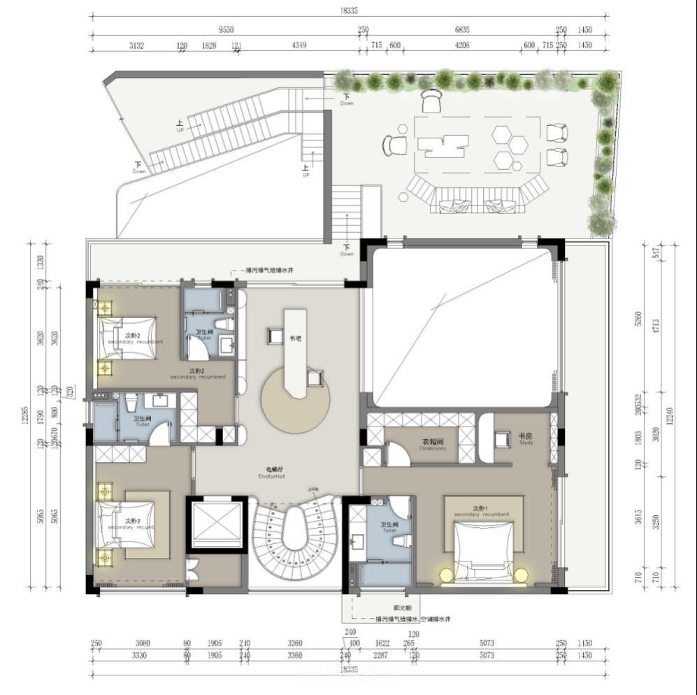
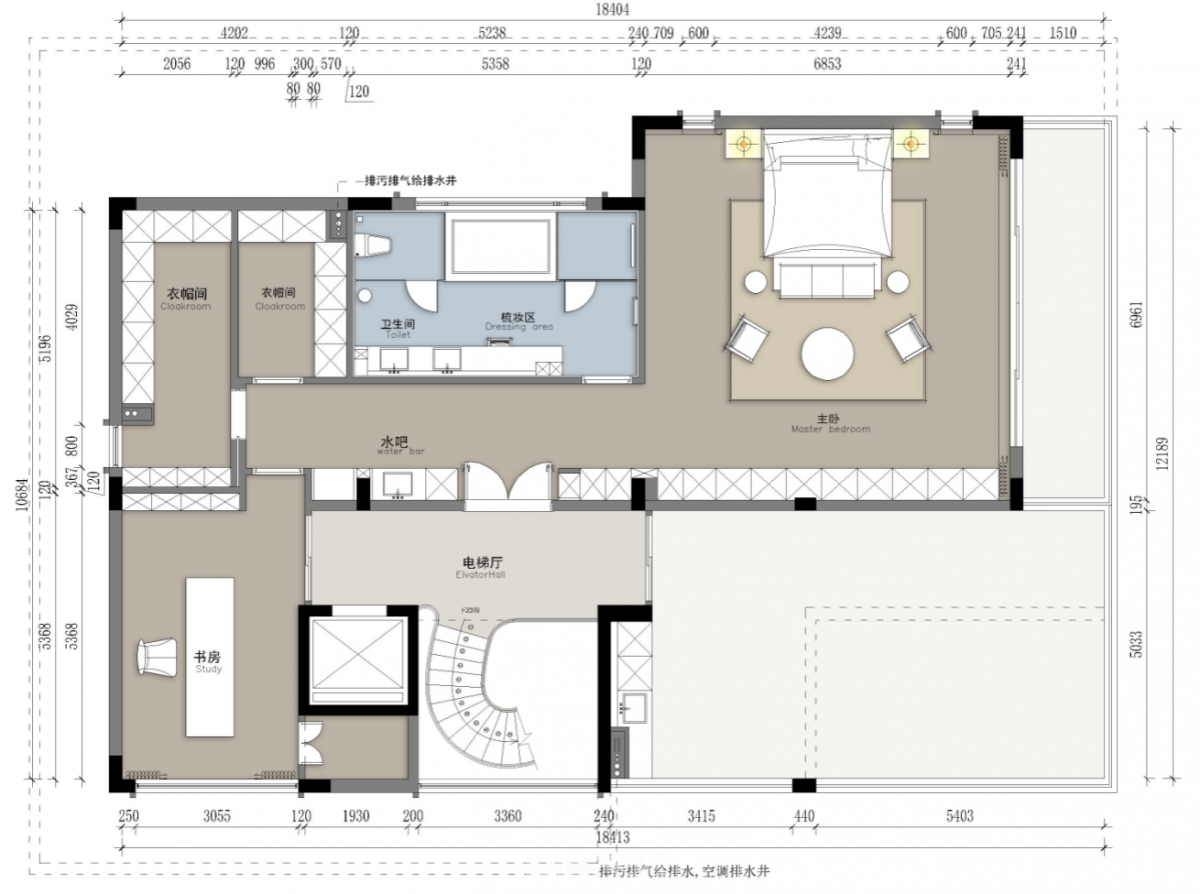
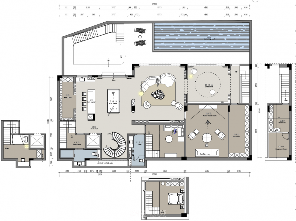
戶型:別墅
面積:1000 m2
設計風格:簡約風格
工程造價:532萬
簡約的是格調, 簡單的是生活的態度。 讓日常在素凈里慢慢流淌。 本案打掉原來別墅 ,從建筑到室內一起規劃。以現代間約為基調。以簡馭繁,
售前咨詢
裝修熱線
預約量房
回到頂部
24小時全國服務熱線
(c)Copyright 2021 廣東星藝裝飾集團有限公司廣州分公司 版權所有 粵ICP備12080332號 公安部備案號 44010602004978號